Älä epäröi ottaa meihin yhteyttä, autamme mielellämme. Joko meidän kauttamme Yhteydenottolomake tai soita numeroon 0920-520056.
- Kampanja on 10% Light duty kaivonkanteen
EDISTÄMINEN ON VOIMASSA ALKAEN 26-30. ELOKUUTA
☀️ Meillä on auki koko kesän. ☀️
Meillä on kesäisin avoinna koko kesän! Arkisin välillä 08-17! ☀️
Valitut:
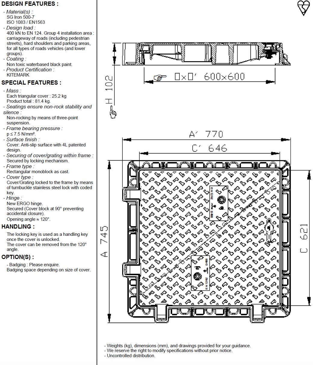
Kansi ja runko pallografiittivalurautaa.
Ovissa on saranat ja ne voidaan lukita.
Sisämitat: 600 × 600 mm.
Korkeus: 102 mm.
Ulkomitat: 770 x 745 mm.
Saatavilla varastossa välittömään toimitukseen.
Kokonaispaino: 81,4 kg.
Jos olet kiinnostunut useista, pyydä tarjous.
Toimituskulut lisätään kassalla.
Älä epäröi ottaa meihin yhteyttä, autamme mielellämme. Joko meidän kauttamme Yhteydenottolomake tai soita numeroon 0920-520056.