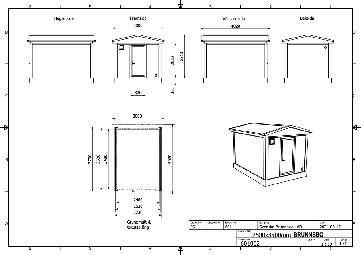
Pumpputalon kaivon ylärakenne Brunnsbo 2500×3500

Kaivon kansi suojaa kaivoasennustasi kylmältä, sateelta ja lumelta. Kansi myös yksinkertaistaa huolto- ja kunnossapitotöitä.

Pumppuhuoneet tai kaivon ylärakenteet rakennetaan sandwich-paneeleista, jotka yhdistävät lujuuden, eristyksen, keveyden ja pitkän käyttöiän. Sandwich-paneeleissa on pintakäsittely maalatusta, täysin sinkitystä teräslevystä. Voidaan toimittaa eri väreissä.

Välieristys on 60 mm:n polyuretaanivaahtoa. Dean UC-arvo on 0,39 W/m²K.

Brunnsbo 2500×3500 -levyn paloluokitus on E 60 ja eurooppalainen paloluokka B-s2, d0.

Soveltamisala:
– Vedenpuhdistusjärjestelmät vesiyhtiöille.
– Kunnalliset pumppuhuoneet ja kaivojen päällysrakenteet.
– Tarkastustilat, tekniset rakennukset
– Lämmintä varastotilaa yms.

Sisämitat:
Pituus: 3500 mm
Leveys: 2500 mm
Korkeus 2020 mm

Ylärakenne asetetaan suoraan sora-alustalle asetetun alustan päälle. Tämä antaa kaivolle erittäin hyvän pakkaselta suojatun tilan, johon pääsee helposti ovesta. Rakennuksissa on esiasennetut nostosilmukat, jotka helpottavat rakennuksen nostamista paikalleen tai siirtämistä mahdollista huoltoa varten.

Turvallisuus on korkea muun muassa takareunasta lukitun oven ansiosta, joka on varustettu hyväksytyillä lukkolaatikoilla ja murtosuojauksella. Voidaan valmistaa myös turvaluokassa 2/3.

Hinta alkaen 157 000 Ruotsin kruunua ilman alv:tä.

Voimme myös valmistaa rakennuksia mittatilaustyönä toiveidesi mukaan, ota yhteyttä ja pyydä tarjous.

Toimitetaan koko maahan.

Hinta yllä olevan perusmallin mukaan maalaamattomana 184 800 SEK ilman ALV:tä toimituskuluineen Ruotsin sisällä.

Tarjous-/tuotetiedustelu

Tuotenro: 551900

Yleisiä kysymyksiä

Tuotekysymykset

Lisätietoja: